Raumplan zum Tag der offenen Tür 2026

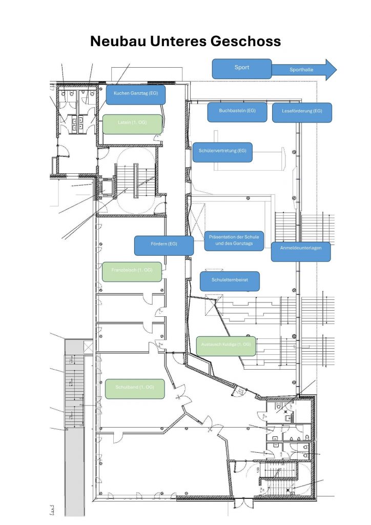
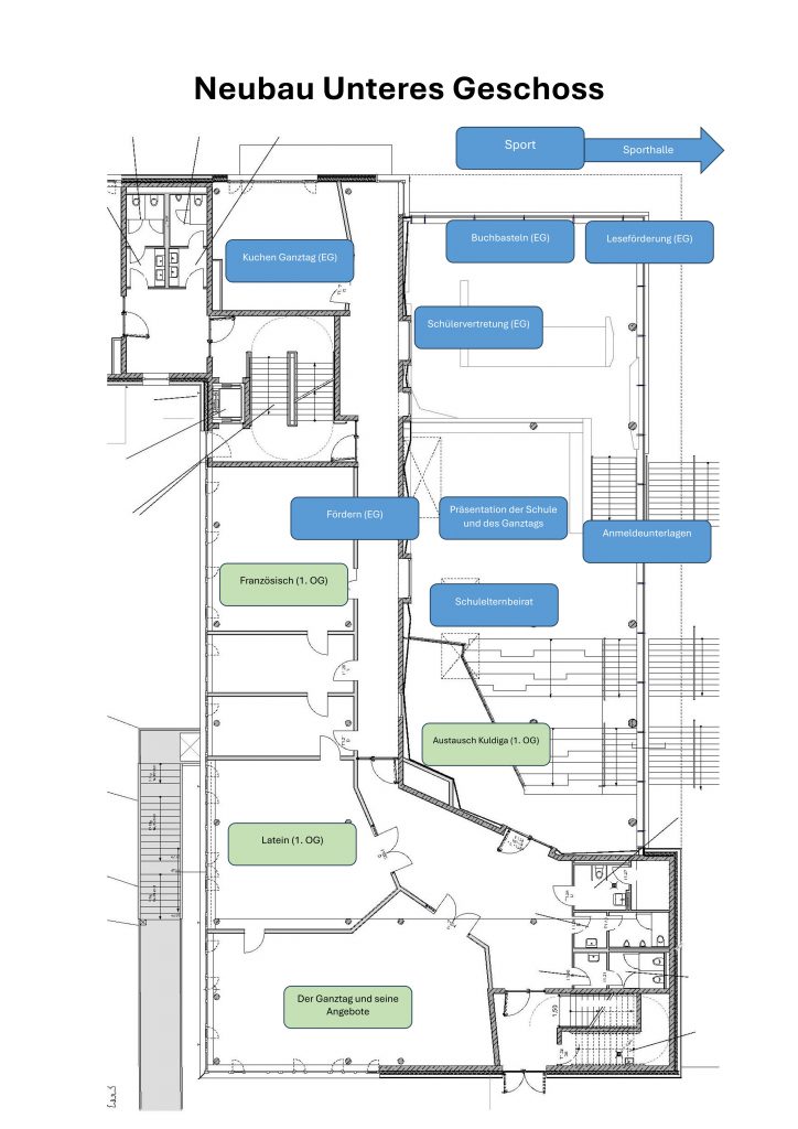
Neubau unteres Geschoss (Bibliothek)

Vom Parkplatz kommend finden Sie unsere Sporthalle in der sich die Fachschaft Sport präsentiert.

Im Neubau wird zentral von unserer Schulbibliothek aus gestartet. Von hier aus können Sie die anderen Räume erreichen.

Unsere Bibliothekarin Frau Duncker, der Ganztag und die Schülervertretung stehen Ihnen im Erdgeschoss für Fragen zur Verfügung.

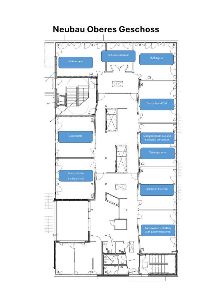
Neubau (oberstes Geschoss)

Im Flur der Oberstufe stellen sich neben den Fachschaften Mathematik, Deutsch, Naturwissenschaften und Geschichte auch die Schulsozialarbeit, der Trainingsraum, die Streitschlichter und die Schulsanitäter vor.

Einen Einblick in unserer Arbeit bittet der Raum „BvS digital“.

Hervorzuheben ist der Ausblick auf unseren zukünftigen Übergangscampus.